Mẫu nhà ở gia đình mái thái 3 phòng ngủ tiện nghi cho người cao tuổi
Sở hữu diện tích đất rộng thật dễ dàng để xây dựng nhà mái thái với 3 phòng ngủ cho gia đinh cô Thanh tại Phường Trảng Dài Biên Hòa, Đồng Nai. Xây dựng Phúc Bình An đã thi công xây dựng hoàn thiện thiết kế này với sự hài lòng từ phía chủ đầu tư.
Thông tin dự án:
Chủ đầu tư: Gia đinh cô Thanh
Địa điểm xây dựng : Trảng Dài – Biên Hòa _ Đồng Nai
Công trình: Thiết kế mẫu nhà ở hiện đại
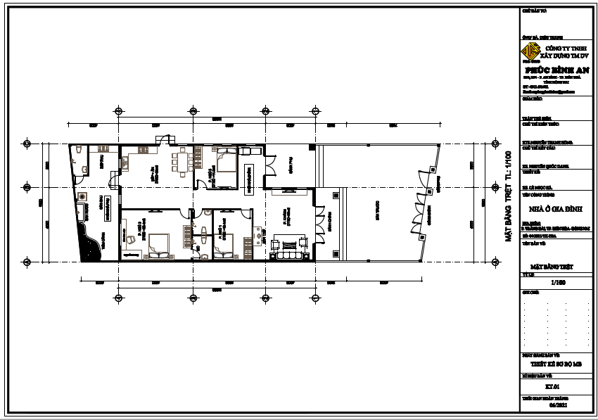
Diện tích xây dựng: 9.5 x 19.6 m2
Công năng sử dụng: Cổng , sân trước rộng (để xe hơi), phòng khách , 3 phòng ngủ, phòng bếp phòng bếp phụ, giếng trời.
Thiết kế:
Thiết kế phối cảnh mặt tiền nhà cô Thanh
Bản vẽ mặt bằng thiết kế nhà cô Thanh
chi tiết thi công dự án:
,
,
,
,
Hoàn thiện công trình:
,
>>>> Xem thêm:
Tổng quan về xây dựng Phúc Bình An
Những sản phẩm không thể thiếu trong nhà
Những sản phẩm không thể thiếu trong nhà
Bạn muốn sửa chữa các đồ dùng thiết bị hư hỏng trong nhà mà thiếu những sản phẩm sau thì việc sửa chữa sẽ khó khăn hơn rất nhiều. Hãy để công cụ hỗ trợ đời sống bạn tốt hơn, những sản phẩm đang bán chạy rất được các chủ nhà ưa chuộng hiện nay.
1. Bộ Dụng Cụ Sửa Chữa Gia Đình Đa Năng 16 Món Tiện Dụng
- Bộ Dụng Cụ Sửa Chữa Gia Đình Đa Năng 16 Món là vật dụng tiện ích cần thiết cho mọi gia đình giúp bạn sửa chữa đồ điện gia dụng, xe máy, xe đạp… một cách nhanh chóng và tiện lợi.
- Gồm 16 món: cờ lê, kềm, búa, tua vít, keo, thước, dao dọc giấy, thước kéo, băng dính điện..., công cụ hỗ trợ hiệu quả cho công việc sửa chữa các vật dụng điện trong nhà.
- Các dụng cụ được làm từ chất liệu thép cao cấp, bền đẹp, sáng bóng, không gỉ.
- Tay cầm của các dụng cụ được bọc nhựa cách điện, cách nhiệt, êm ái cho đôi tay.
- Bộ sản phẩm với thiết kế nhỏ gọn với hộp đựng tiện dụng, đẹp, xinh xắn, tiết kiệm diện tích không gian nhà bạn và dễ dàng vận chuyển.
2. Đầu vòi lọc nước rửa bát tăng áp xoay 360 có thể kéo dài, chống bắn nước ra ngoài cực hiệu quả
3. Ổ Cắm Điện USB Đa Năng Cao Cấp Chống Giật Dây Dài 4m Công suất 2500W, 2 Cổng Cắm USB Có Chốt An Toàn Tiện Dụng
4. BỘ VÒI RỬA TĂNG ÁP LỰC & DÂY NHỰA PVC DẺO , VÒI TƯỚI CÂY - RỬA XE GIA ĐÌNH
Nếu Quý Khách đang có nhu cầu xây nhà hoặc sửa chữa lại nhà

CÔNG TY TNHH XÂY DỰNG - THƯƠNG MẠI - DỊCH VỤ PHÚC BÌNH AN
Địa chỉ: 30/3 Kp4, P.An Bình, Biên Hòa, Đồng Nai
Hotline: 0913 696981
Email: xaydungphucbinhan@gmail.com














Xem thêm