Tham Quan Mẫu Thiết Kế Nhà Rộng 7m Dài 13m Thời Thượng
Mô hình nhà ở rộng 7m dài 13m đang trở nên hot hơn cả trong những năm gần đây. Không gian rộng rãi vừa đủ phù hợp cho gia đình 2 đến 3 thế hệ cùng phong cách sang trọng, hiện đại nên càng nhiều người có xu hướng lựa chọn loại nhà này để xây dựng nơi sum vầy cho tổ ấm của mình.
Mô hình nhà ở rộng 7m dài 13m đang trở nên hot hơn cả trong những năm gần đây. Không gian rộng rãi vừa đủ phù hợp cho gia đình 2 đến 3 thế hệ cùng phong cách sang trọng, hiện đại nên càng nhiều người có xu hướng lựa chọn loại nhà này để xây dựng nơi sum vầy cho tổ ấm của mình.
Có rất nhiều mô hình thiết kế nhà rộng 7m dài 13m mà bạn có thể tìm thấy. Mẫu thiết kế dưới đây mà Xây Dựng Phúc Bình An giới thiệu cho bạn cũng là một sự lựa chọn không tồi đâu, cùng tham quan ngôi nhà này như thế nào nhé!
Tổng quan mẫu thiết kế nhà rộng 7x13m
Căn nhà được gia cố với hệ thống trụ cột vững chãi cùng mặt tiền với nhiều đường nét khỏe khoắn và hình thù vuông vắn tăng thêm sự kiên cố cho toàn bộ công trình.
Bên ngoài ngôi nhà được khoác lên màu trắng dịu nhẹ, thanh khiết điểm thêm vào đó là đường nét hiện đại là bật lên sự tinh tế, tỉ mỉ, vô cùng hút mắt.
Hơn nữa, những đường gờ bắc ngang chạy song song nhau khiến căn nhà trông không hề nhạt nhòa, đơn điệu. Mái nhà được thiết kế theo hình chữ A giật cấp có độ dốc thoải tạo cảm giác cân đối cả về chiều ngang lẫn chiều dọc.
Ngoài ra, xung quanh ngôi nhà được sắp xếp các tấm kính cường lực vừa để tăng thêm tính thẩm mĩ, vừa đón được nhiều ánh sáng tự nhiên để bên trong căn nhà sáng sủa, thông thoáng, đảm bảo được sức khỏe gia đình. Thêm vào đó, phía trước và ban công được trồng thêm cây xanh tạo cảm giác dịu nhẹ, thư giãn, gần gũi với thiên nhiên.
Xem thêm: Dịch vụ thiết kế nhà
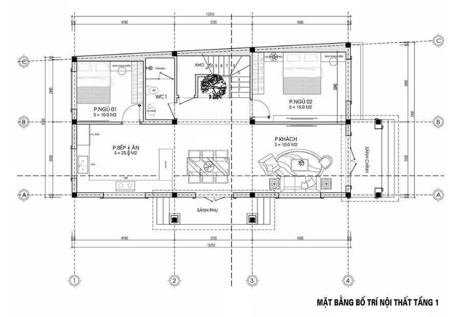
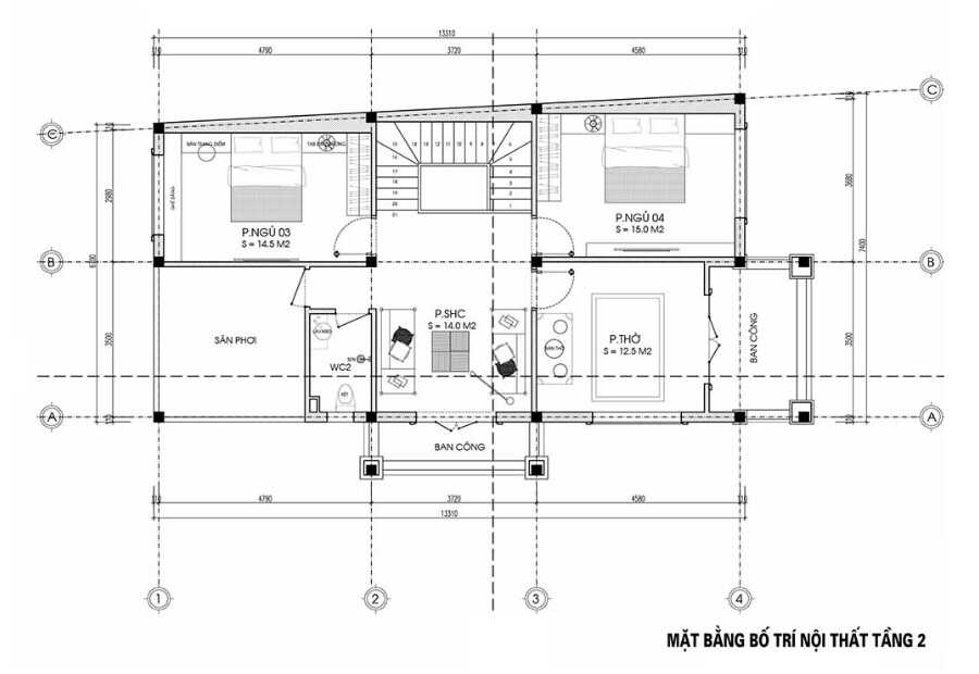
Bố cục căn nhà 7x13m
Mẫu thiết kế nhà rộng 7m dài 13m 2 tầng ẵm chọn sự yêu thích của người xem không chỉ bởi vẻ ngoài bắt mắt mà còn là sự thông minh, sáng suốt trong sắp xếp bố cục.
Tầng 1: Không gian được sử dụng làm nơi sinh hoạt chung cho gia đình cần đảm bảo đầy đủ sự tiện nghi và thông thoáng. Đầu tiên, kiến trúc sư thiết kế sảnh chính và phụ cho mục đích đi lại và để không khí tràn vào.
Kế ngay sảnh là phòng khách với lối thiết kế hiện đại. Kết nối với phòng khách là phòng bếp với thiết kế hướng ra sân sau để đón nhiều ánh sáng nhất.
Phía cuối được sắp xếp một nhà vệ sinh. Ngoài ra, cầu thang được đặc ở trung tâm ngôi nhà, thuận tiện cho di chuyển. Hai bên cầu thang được xếp hai phòng ngủ nhỏ có cửa sổ thông thoáng.
Tầng 2: Đây là nơi chủ yếu để gia đình nghỉ ngơi nên được thiết kế đơn giản hơn nhưng vẫn không kém phần tiện lợi. Từ cầu thang đi lên là không gian cho gia đình sum vầy, trò chuyện với nhau mỗi tối. Bên cạnh là phòng thờ được thiết kế không gian linh thiêng. Phía còn lại là hai phòng ngủ ấm cúng với hệ thống cửa sổ thông thoáng.
Nội thất từng gian phòng
Vừa rồi bạn đã được trải nghiệm một vòng mẫu thiết kế nhà 2 tầng 7x13m, tuy nhiên, một ngôi nhà tuyệt vời không chỉ bởi vẻ ngoài thôi đâu mà còn cả về nội thất bên trong nữa. Tiếp sau đây, chúng ta cùng đi sâu hơn vào nội thất từng gian phòng như thế nào nhé!
Phòng khách trang trọng, hiện đại
Gam màu chủ đạo cho căn phòng này là những màu trung tính (trắng, nâu, be,...) vừa tôn vẻ thanh lịch vừa tạo cái nhìn hài hòa cho căn phòng. Kết hợp với đó là bộ ghế sofa êm ái, đem lại cảm giác thoải mái nhất cho chủ nhà và khách đến thăm. Bàn uống nước cùng kệ để TV cũng được lựa chọn thiết kế hiện đại, màu sắc phù hợp với gam nền.
Tường được lợp gỗ thoát nhiệt tốt để gian phòng luôn mát mẻ. Cùng với đó là các bức tranh nghệ thuật, ảnh gia đình treo đan xen tăng thêm phần sinh động. Không gian càng mát mẻ, thoáng đãng hơn khi có sự góp mặt của một vài chậu cây cảnh.
Xem thêm: Những thông tin nên biết về dịch vụ xây nhà trọn gói tại Công ty Phúc Bình An
Phòng bếp thông thoáng, sáng sủa
Nhờ vị trí gắn liền với sân sau cùng hệ thống cửa sổ bắt sáng nên tiêu chuẩn sáng sủa của gian phòng hoàn toàn được đảm bảo. Về nội thất, tủ bếp chữ L hiện đại với nhiều kệ mở để đồ vừa tiết kiệm tối đa được không gian đi lại vừa tiện lợi khi sử dụng.
Bề mặt bàn bếp được bố trí bệ đá màu sắc tối thoải mái bày biện thức ăn. Do đó, việc lau chùi dễ dàng hơn mà vẫn tăng thêm tính thẩm mĩ cho căn phòng. Ngoài ra, bộ bàn ghế tao nhã, mộc mạc cũng là sự lựa chọn tối ưu cho kiểu thiết kế này.
Phòng ngủ ấm cúng
Nhằm tạo sự đồng nhất cho căn nhà, màu trắng vẫn được lựa chọn làm gam màu chủ đạo cho phòng ngủ. Song, tuỳ từng sở thích của từng thành viên mà mỗi phòng ngủ lại được điểm thêm một vài màu sắc khác nhau nên tổng quan phòng ngủ cũng không hề đơn điệu.
Phòng ngủ vợ chồng được trang trí theo lối ấm áp, lãng mạn. Giường ngủ êm ái được thiết kế khác biệt với tấm đầu giường cao để đọc sách hay coi tivi thuận tiện hơn. Bàn làm việc, bàn trang điểm được sắp xếp sao cho đảm bảo không gian đi lại.
Phòng ngủ ông bà với gam màu trầm tính, thiên ấm để tạo nên cảm giác thư thái, nhẹ nhàng thích hợp cho người cao tuổi. Hoạ tiết xung quanh căn phòng khá giản dị, hài hoà theo sở thích của ông bà.
Phòng ngủ của con cái sẽ được cải cách theo lối tươi sáng, sống động hơn. Ngoài chiếc giường ngủ đơn giản, ta có thể thêm thắt những hoa văn nhẹ nhàng, bố trí cửa sổ rộng hướng ra ngoài.
Phòng tắm tiện dụng
Diện tích cho phòng tắm không cần quá nhiều nên cũng không quá khắt khe trong thiết kế. Bố trí nội thất đầy đủ nhưng vẫn cần đảm bảo có không gian đứng thoải mái. Ngoài ra, có thể chọn gam màu trung tính để tăng tính thẩm mĩ.
Những sản phẩm không thể thiếu trong nhà
Những sản phẩm không thể thiếu trong nhà
Bạn muốn sửa chữa các đồ dùng thiết bị hư hỏng trong nhà mà thiếu những sản phẩm sau thì việc sửa chữa sẽ khó khăn hơn rất nhiều. Hãy để công cụ hỗ trợ đời sống bạn tốt hơn, những sản phẩm đang bán chạy rất được các chủ nhà ưa chuộng hiện nay.
1. Bộ Dụng Cụ Sửa Chữa Gia Đình Đa Năng 16 Món Tiện Dụng
- Bộ Dụng Cụ Sửa Chữa Gia Đình Đa Năng 16 Món là vật dụng tiện ích cần thiết cho mọi gia đình giúp bạn sửa chữa đồ điện gia dụng, xe máy, xe đạp… một cách nhanh chóng và tiện lợi.
- Gồm 16 món: cờ lê, kềm, búa, tua vít, keo, thước, dao dọc giấy, thước kéo, băng dính điện..., công cụ hỗ trợ hiệu quả cho công việc sửa chữa các vật dụng điện trong nhà.
- Các dụng cụ được làm từ chất liệu thép cao cấp, bền đẹp, sáng bóng, không gỉ.
- Tay cầm của các dụng cụ được bọc nhựa cách điện, cách nhiệt, êm ái cho đôi tay.
- Bộ sản phẩm với thiết kế nhỏ gọn với hộp đựng tiện dụng, đẹp, xinh xắn, tiết kiệm diện tích không gian nhà bạn và dễ dàng vận chuyển.
2. Đầu vòi lọc nước rửa bát tăng áp xoay 360 có thể kéo dài, chống bắn nước ra ngoài cực hiệu quả
3. Ổ Cắm Điện USB Đa Năng Cao Cấp Chống Giật Dây Dài 4m Công suất 2500W, 2 Cổng Cắm USB Có Chốt An Toàn Tiện Dụng
4. BỘ VÒI RỬA TĂNG ÁP LỰC & DÂY NHỰA PVC DẺO , VÒI TƯỚI CÂY - RỬA XE GIA ĐÌNH
Nếu Quý Khách đang có nhu cầu xây nhà hoặc sửa chữa lại nhà

CÔNG TY TNHH XÂY DỰNG - THƯƠNG MẠI - DỊCH VỤ PHÚC BÌNH AN
Địa chỉ: 30/3 Kp4, P.An Bình, Biên Hòa, Đồng Nai
Hotline: 0913 696981
Email: xaydungphucbinhan@gmail.com








Xem thêm